Mixer 7 and new filler storage (8 silos)

Situation Géographique

Colmar-Berg

Nature des prestations

- Recherche et étude documentations et informations
- Préétude génie-civil
- Réalisation d’un modèle graphique 3D du site
- Etablissement des dossiers de soumission et dossiers d’appel d’offres
- Projet d’architecture, y compris plans d’exécution
- Calculs de stabilité et plans de construction
- Suivi du chantier
- Project management
- Mission de coordination en matière de sécurité et de santé
- Aménagements extérieurs

Intervenants

Maître d’ouvrage :
Goodyear Dunlop Tires Operation SA
Bureaux d’études :
TR-Engineering (génie civil et project management)
LuxAutec (génie technique)

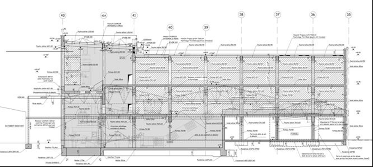
Description des principales caractéristiques

Construction d’un nouveau hall pour une nouvelle ligne de production comprenant :
- La protection des réseaux existants.
- La stabilisation des bâtiments avoisinants.
- La construction d’un « tunnel » pour garantir le passage pendant les travaux.
- La démolition du hall existant en charpente métallique.
- La réalisation des fondations sur pieux.
- La réalisation d’une nouvelle construction en béton armé et maçonnerie.
- La mise en œuvre d’une façade en tôle sandwich et étanchéité toiture.
- La réalisation des fondations sur pieux pour silos.
- La charpente métallique.
- Les aménagements extérieurs.